Projekt

Kanceláře

Rok: 2023

Spolupráce: AEDI Ateliér

Kanceláře – zasedací místnost
Kanceláře – recepce
Kanceláře – kuchyňka
Kanceláře – lounge kout
Kanceláře – light design
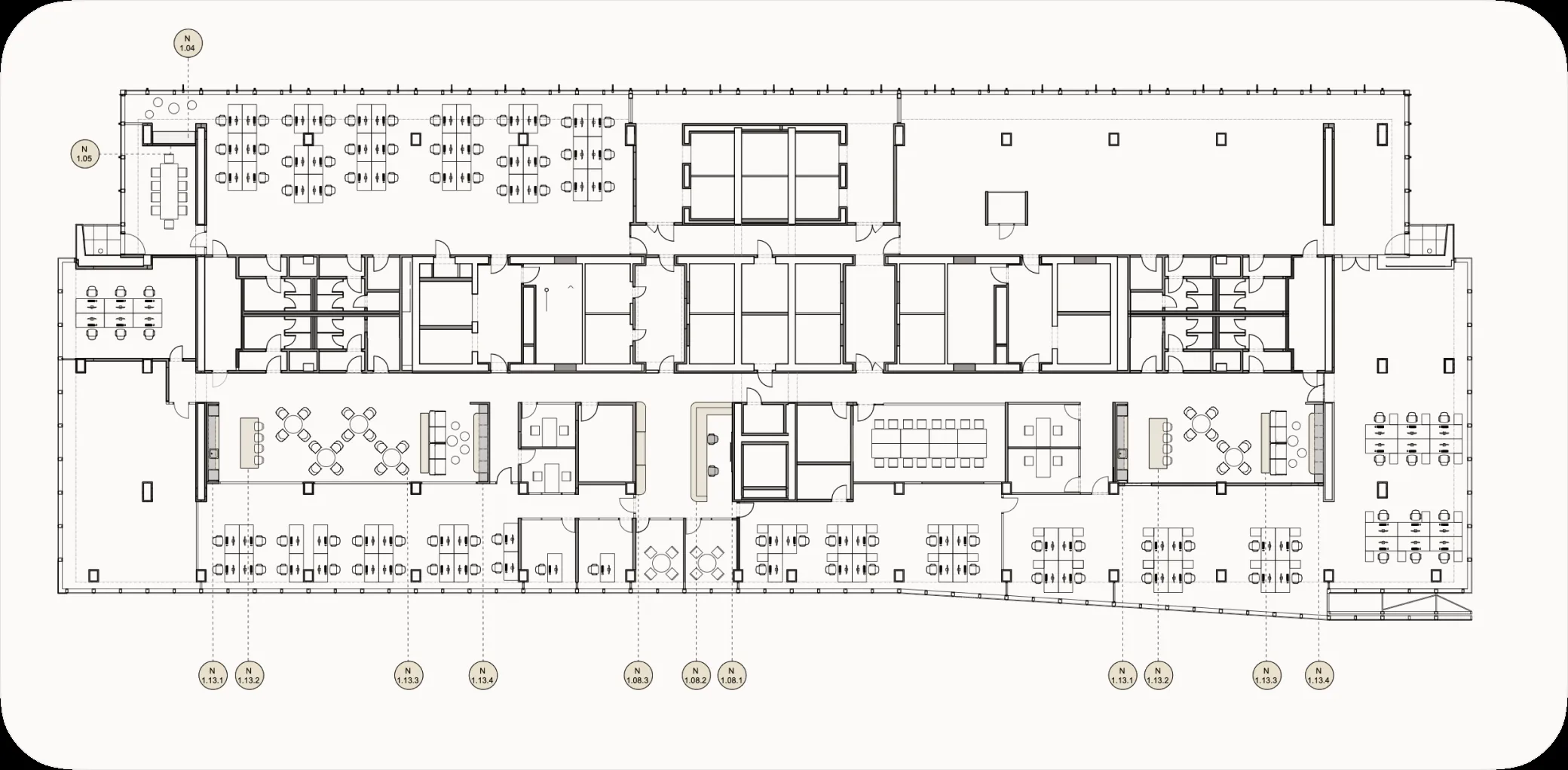
Kanceláře – půdorys podlaží
Kanceláře – výkres detail
Hotel Tréninkové centrum