Projekt

Tréninkové centrum

Rok: 2026

Spolupráce: AEDI Ateliér

Tréninkové centrum – hlavní prostor
Tréninkové centrum – recepce
Tréninkové centrum – tréninkový sál
Tréninkové centrum – zázemí
Tréninkové centrum – lounge
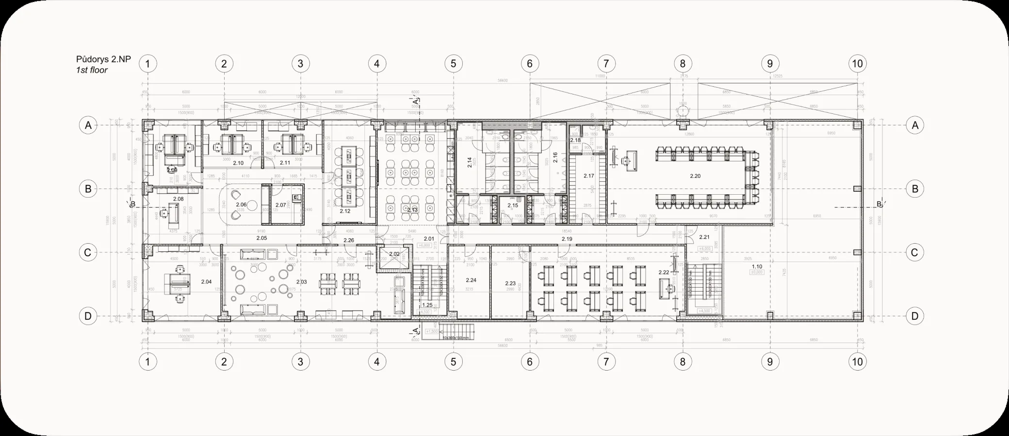
Tréninkové centrum – půdorys 2NP
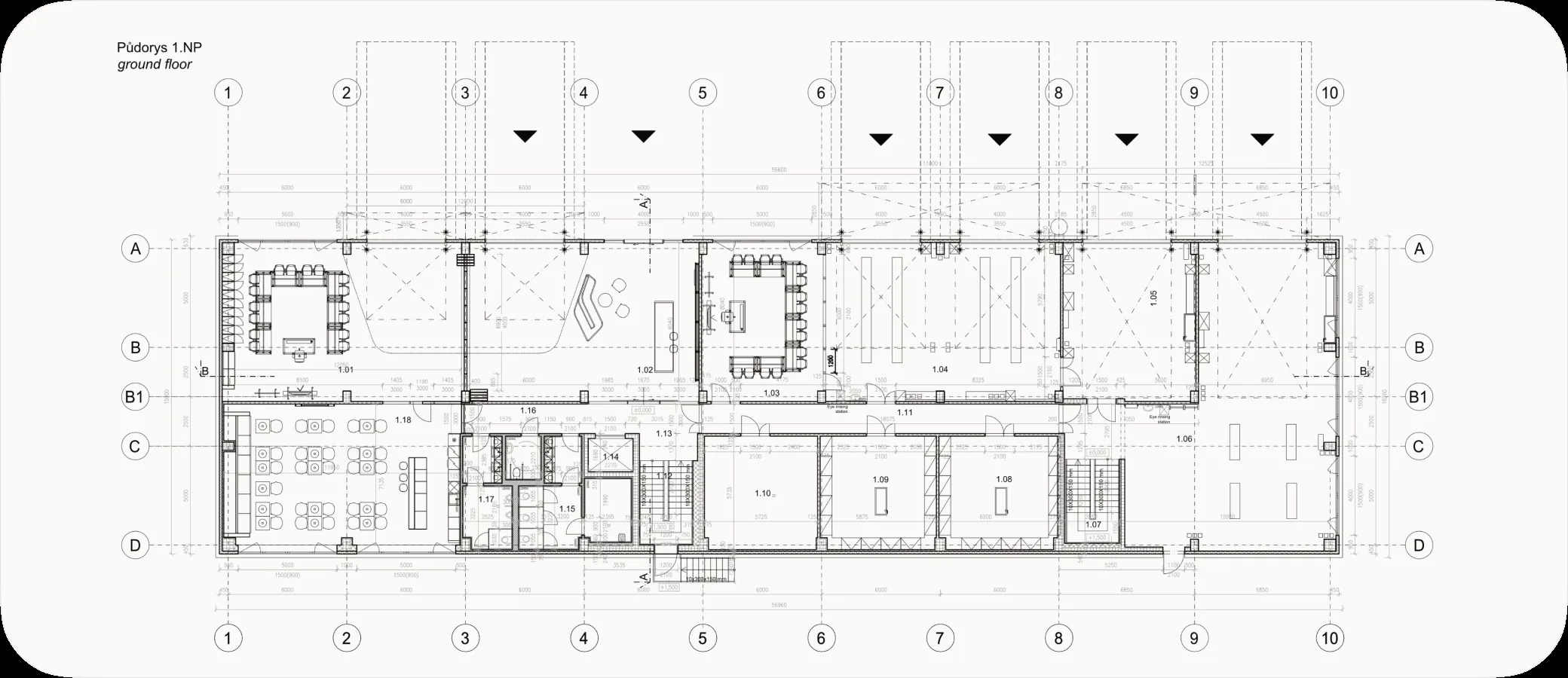
Tréninkové centrum – půdorys 1NP
Kanceláře Wellness